Aartselaar

€19.008 /maand
Kontichsesteenweg 63, 2630 Aartselaar
Ref. BR/BVdM/TH/2387
Algemeen

Op zoek naar een magazijn op een boogscheut van de A12 (Antwerpen - Brussel)?

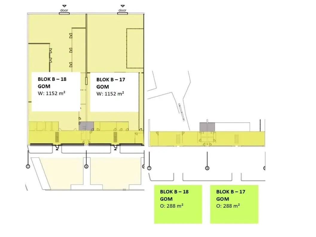
Dit magazijn biedt een oppervlakte van 2.304 m² magazijn met een kantoor van 576 m².

Het kantoor is volledig uitgerust en 2 sectionaalpoorten zijn aanwezig om uw logistieke activiteiten vlot te laten verlopen.

De huurprijs voor het magazijn met kantoor bedraagt 19.008 euro per maand.

Aarzel niet en contacteer ons vandaag voor meer informatie.
Bricx Vastgoed
Brent.vdm@bricx.be
0494 26 80 70

Details

Bebouwing

EPC Index
In aanvraag
Terug naar overzicht

Voel je de aantrekkingskracht?

Laat je gegevens achter en wij nemen graag contact met je op voor een afspraak.

En wat met je eigen woning?
Verkopen?

Alle tijdslots zijn volgeboekt!
Graag even geduld, de verantwoordelijke voegt binnenkort nieuwe slots toe.

© 2026 Bricx - Cookie-instellingen
design newdays - development kubrick
gratis schatting