Vergund nieuwbouwproject pal in het centrum

€189.000
Kasteelstraat 11, 8860 Lendelede
Ref. BK/LVH/TK/0518

Bebouwing

Woonoppervlakte
290m2
Grondoppervlakte
465m2
Aantal slaapkamers
5
Algemeen

Leuk nieuwbouwproject met een goedgekeurde vergunning voor het bouwen van 3 appartementen en 4 parkeerplaatsen pal in het centrum van Lendelede.

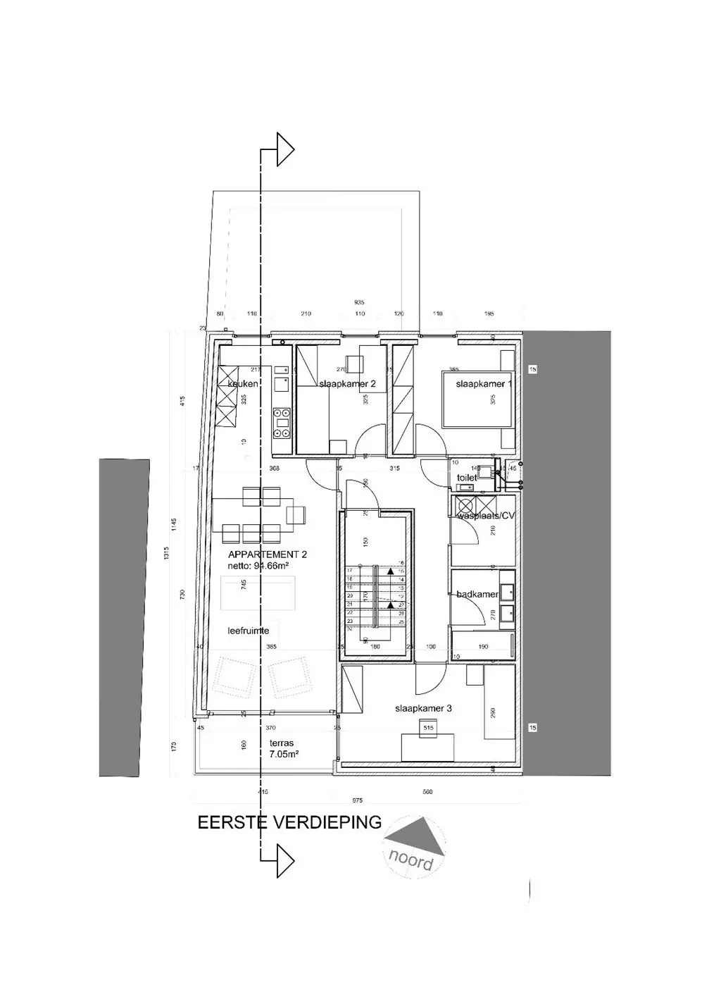
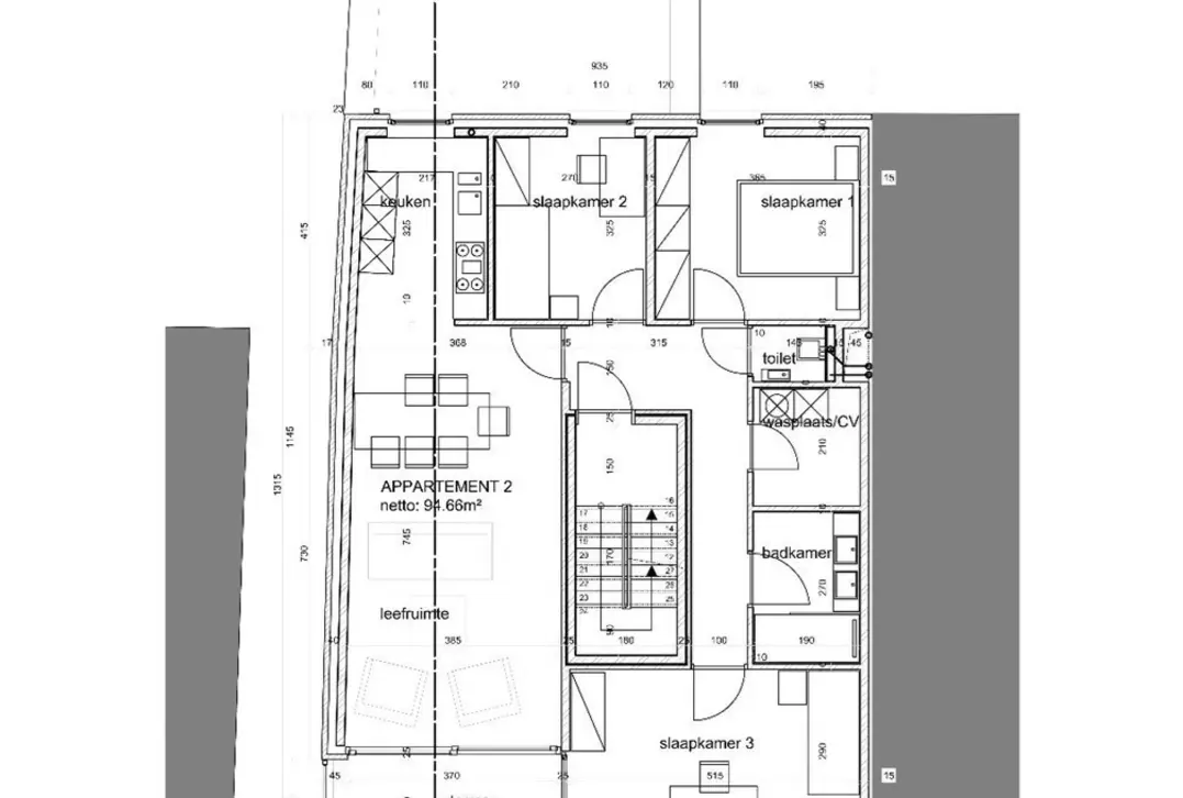
Indeling:

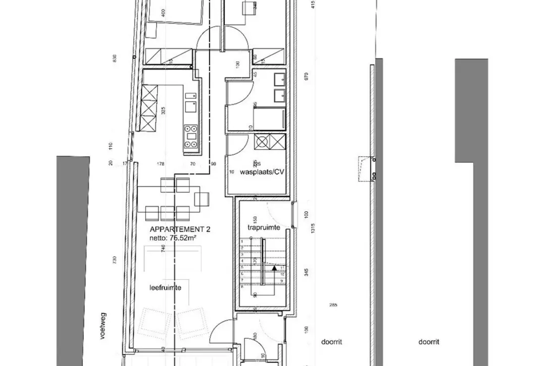
  • GLV: Appartement 76m² met private tuin en doorgang naar 4 achterliggende staanplaatsen
  • 1e: 3-slaapkamer appartementen van 95m² met terras
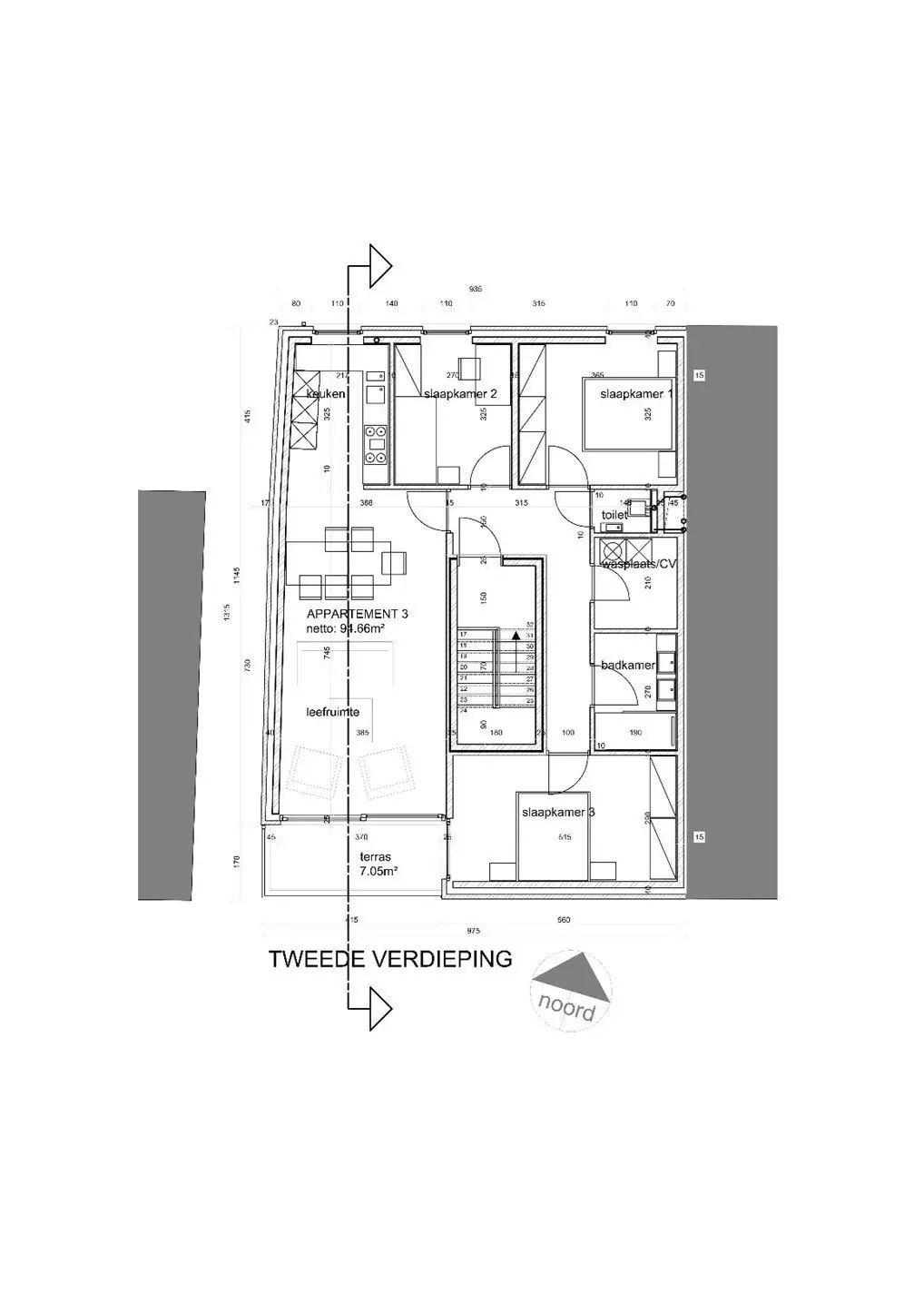
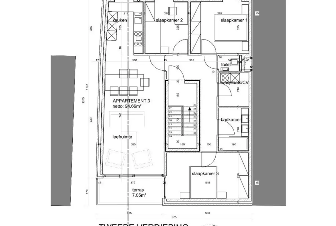
  • 2e: 3-slaapkamer appartementen van 95m² met terras

De plannen zijn terug te vinden via onze site.

Details

Bebouwing

Woonoppervlakte
290m2
Grondoppervlakte
465m2
Aantal slaapkamers
5
Kadastraal inkomen
€ 692
EPC Index
740.00kWh / (m2jaar)
EPC Certificaat Nr 2534859

Ruimtelijke ordening

Stedenbouwkundige vergunning
ja
Rechterlijke beslissing
nee
Voorkooprecht
ja
Verkavelingsvergunning
ja
Stedenbouwkundige bestemming
Woon­gebied

Comfort

Tuin
Ja
Garage
Ja
Kelder
Ja
Documenten
    Certificaat-20220127-0002534859-RES-1.pdf
    Doorsnede
    Terrein, bestaand
    Terrein, nieuw
    Voorgevel
    Zijgevel links
    Achtergevel
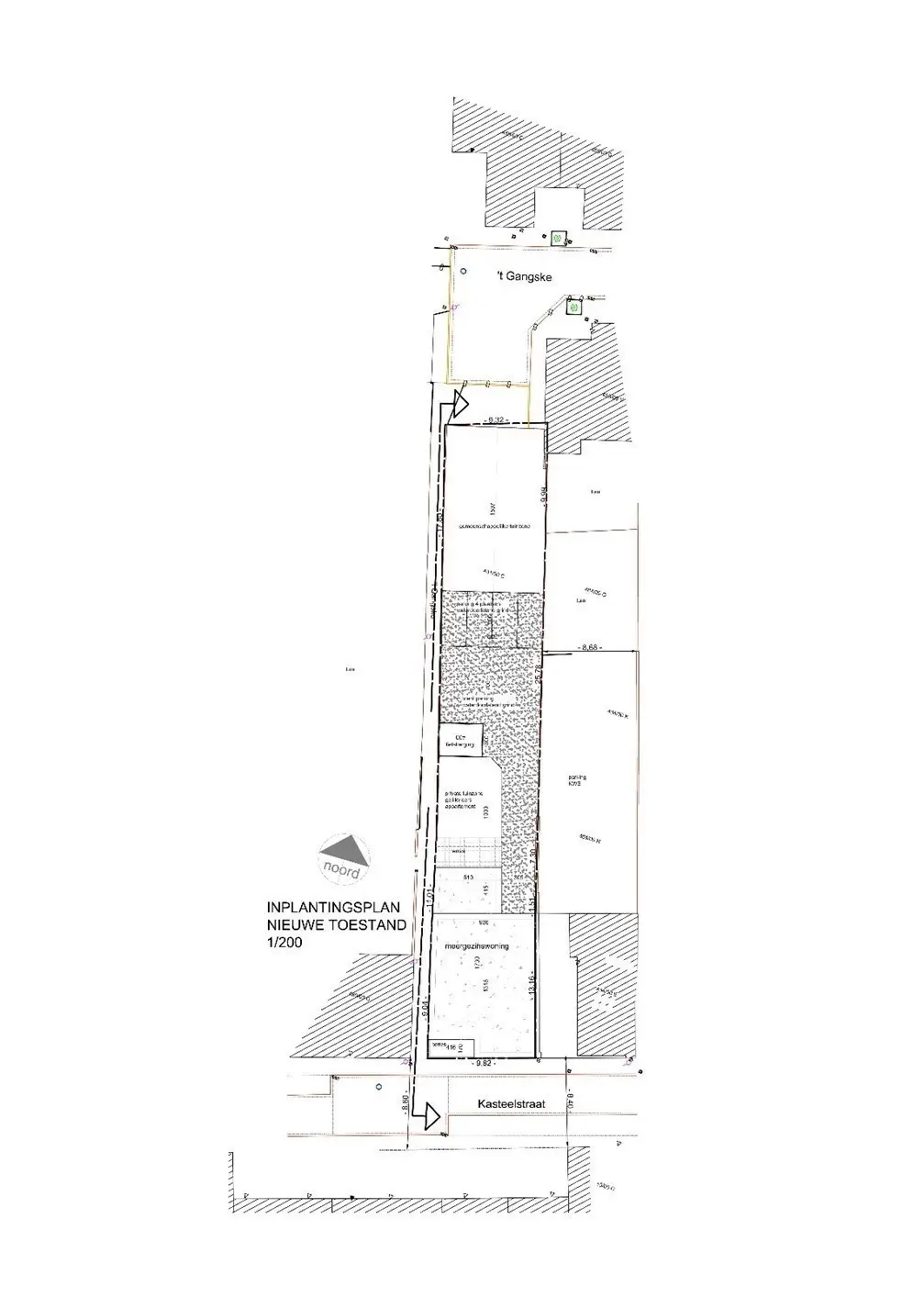
    Inplaningsplan, bestaand
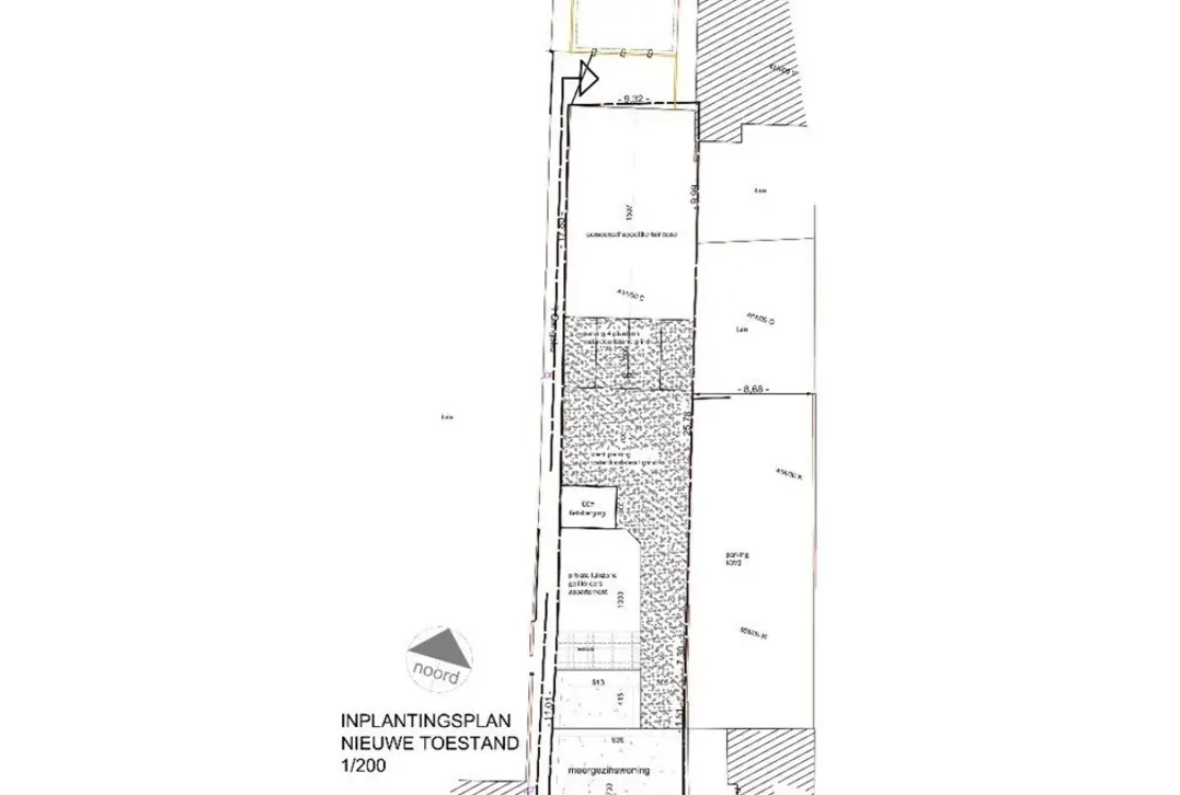
    Inplaningsplan, nieuw
    Legende
    Fundering- en rioleringsplan
    Grondplan GLV
    Grondplan +1
    Grondplan +2
    Grondplan 1
Terug naar overzicht

Voel je de aantrekkingskracht?

Laat je gegevens achter en wij nemen graag contact met je op voor een afspraak.

En wat met je eigen woning?
Verkopen?

Alle tijdslots zijn volgeboekt!
Graag even geduld, de verantwoordelijke voegt binnenkort nieuwe slots toe.

© 2026 Bricx - Cookie-instellingen
design newdays - development kubrick
gratis schatting